Skip to content
Emmanuel Dietz – architekt – bachelor of arts zfh

Emmanuel Dietz – architekt – bachelor of arts zfh

Architekt – bachelor of arts zfh

  • Entwurf
  • Planung
  • Ausführung
  • Design
  • Lebenslauf

Wettbewerb Spital „KSA“

Aarau
Wettbewerb
Wettbewerbsteam
2018
Schneider & Schneider Architekten ETH BSA SIA AG

KSA-01
KSA-02
KSA-03
KSA-04
KSA-BS-01
KSA-BS-02
KSA-BS-03
KSA-BS-04
2.UG_
1.UG_
1.OG_
2.OG_
4.OG_
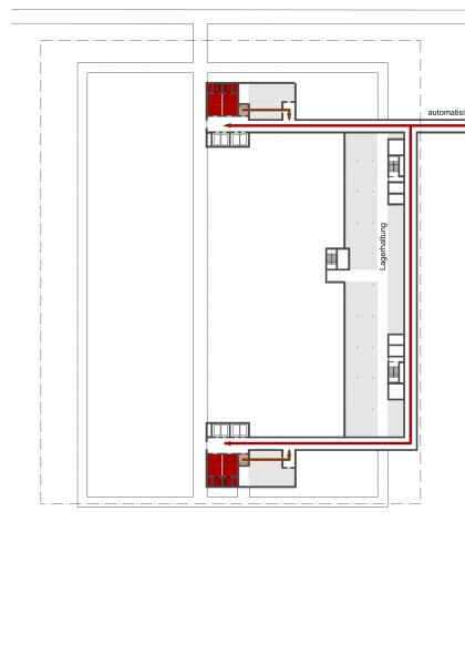
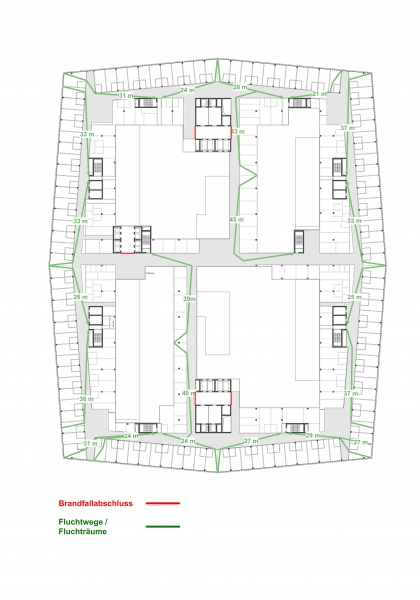
Erschliessungskonzept
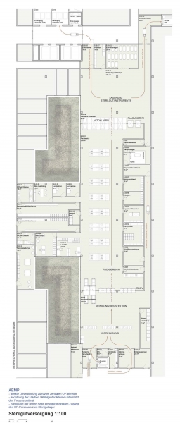
Steri
0_KSA_Schneider_Ext_180320

[Show slideshow]

Impressum