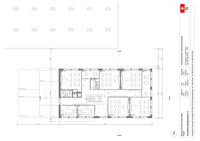
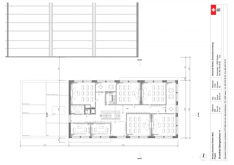
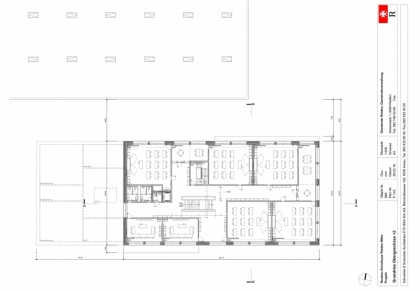
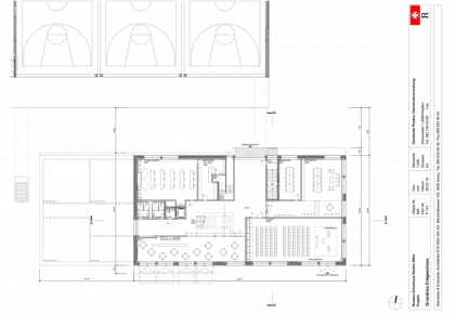
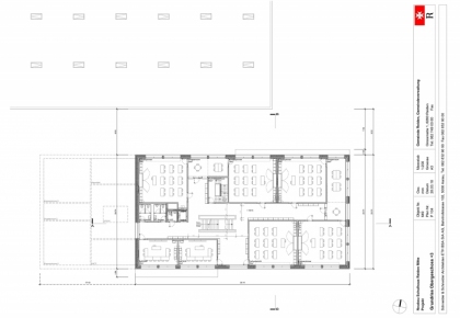
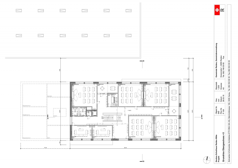
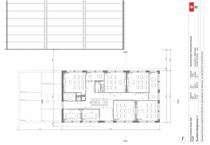
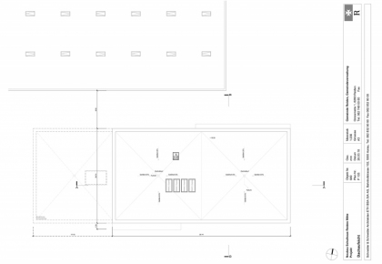
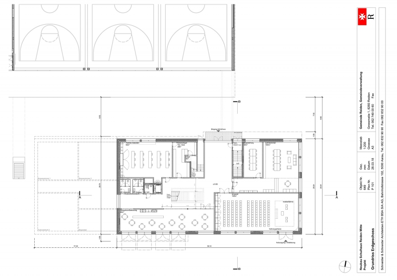
Schulhaus „Reiden Mitte“

Reiden
Projekt-Überarbeitung inkl. Brandschutzkonzept
Assistenz Projektleitung
2017
Schneider & Schneider Architekten ETH BSA SIA AG