Skip to content
Emmanuel Dietz – architekt – bachelor of arts zfh

Emmanuel Dietz – architekt – bachelor of arts zfh

Architekt – bachelor of arts zfh

  • Entwurf
  • Planung
  • Ausführung
  • Design
  • Lebenslauf

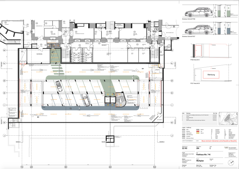
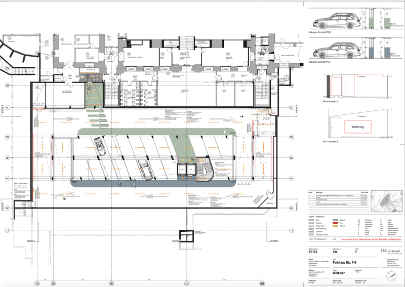
Sanierung Parkhaus „Casino Parking“

Baden
Ausführung
Bauleiter
2023
Atelier West Architekten AG

Bildschirmfoto-2026-03-25-um-14.25.27
Bildschirmfoto-2026-03-25-um-14.25.33
Bildschirmfoto-2026-03-25-um-14.26.32
Bildschirmfoto-2026-03-25-um-14.25.12
01EINFAHRRT
02EINFAHRT
03ETAGE
04TREPPENHAUS

[Show slideshow]

Impressum