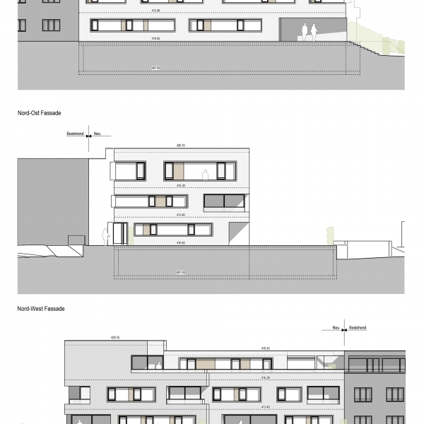
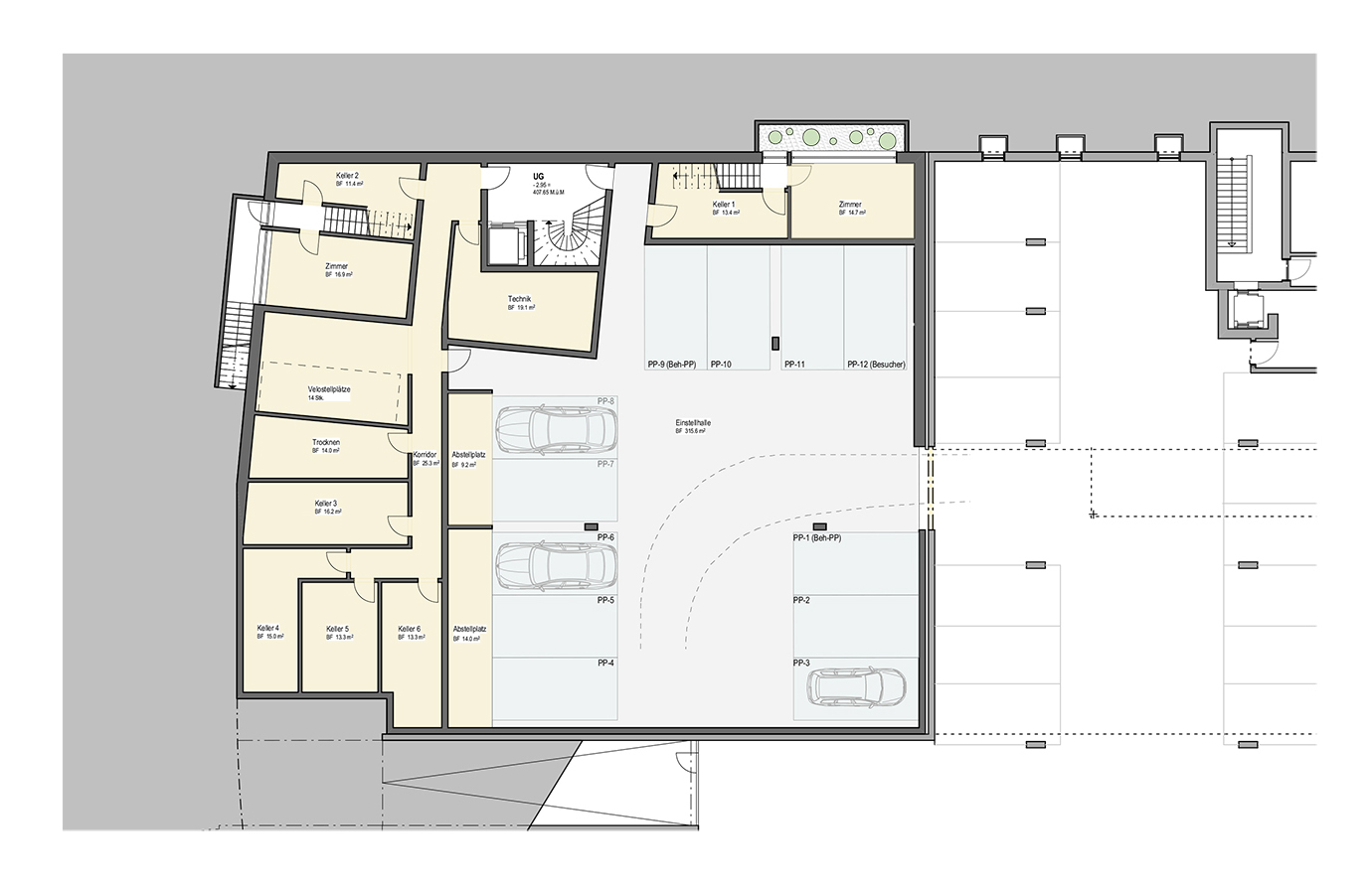
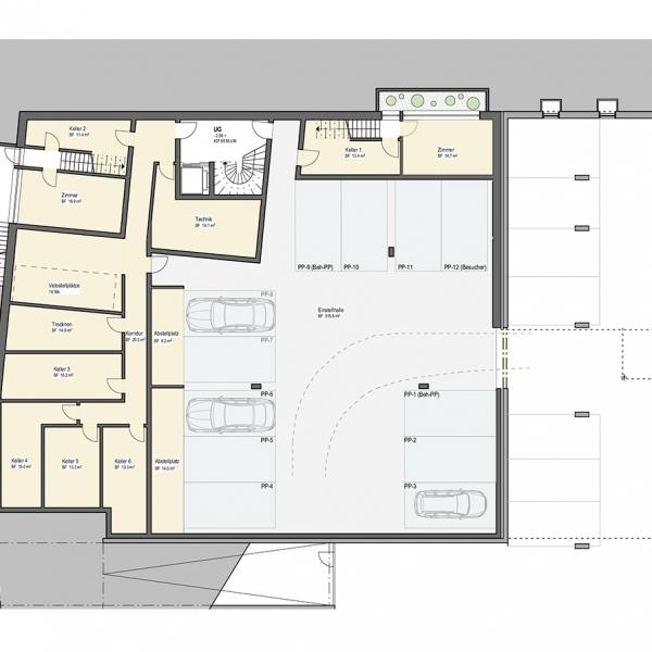
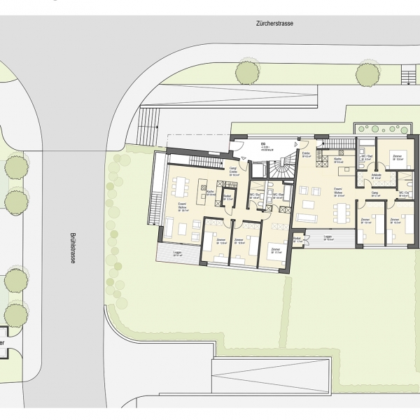
MFH“Bruehlmatte“ Killwangen Vorprojekt bis Baueingabe Junior-Projektleitung 2016 rgp architekten sia ag