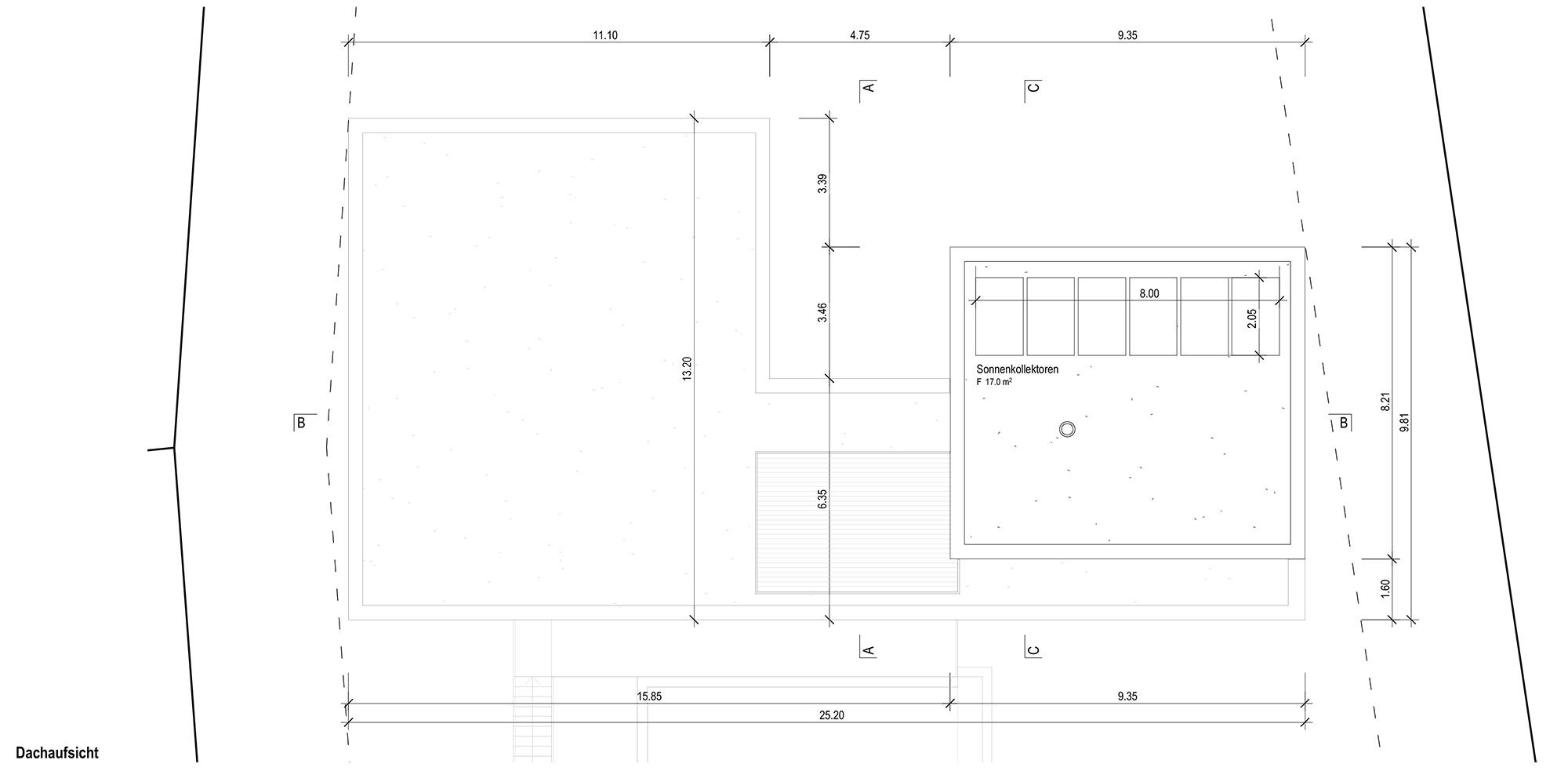
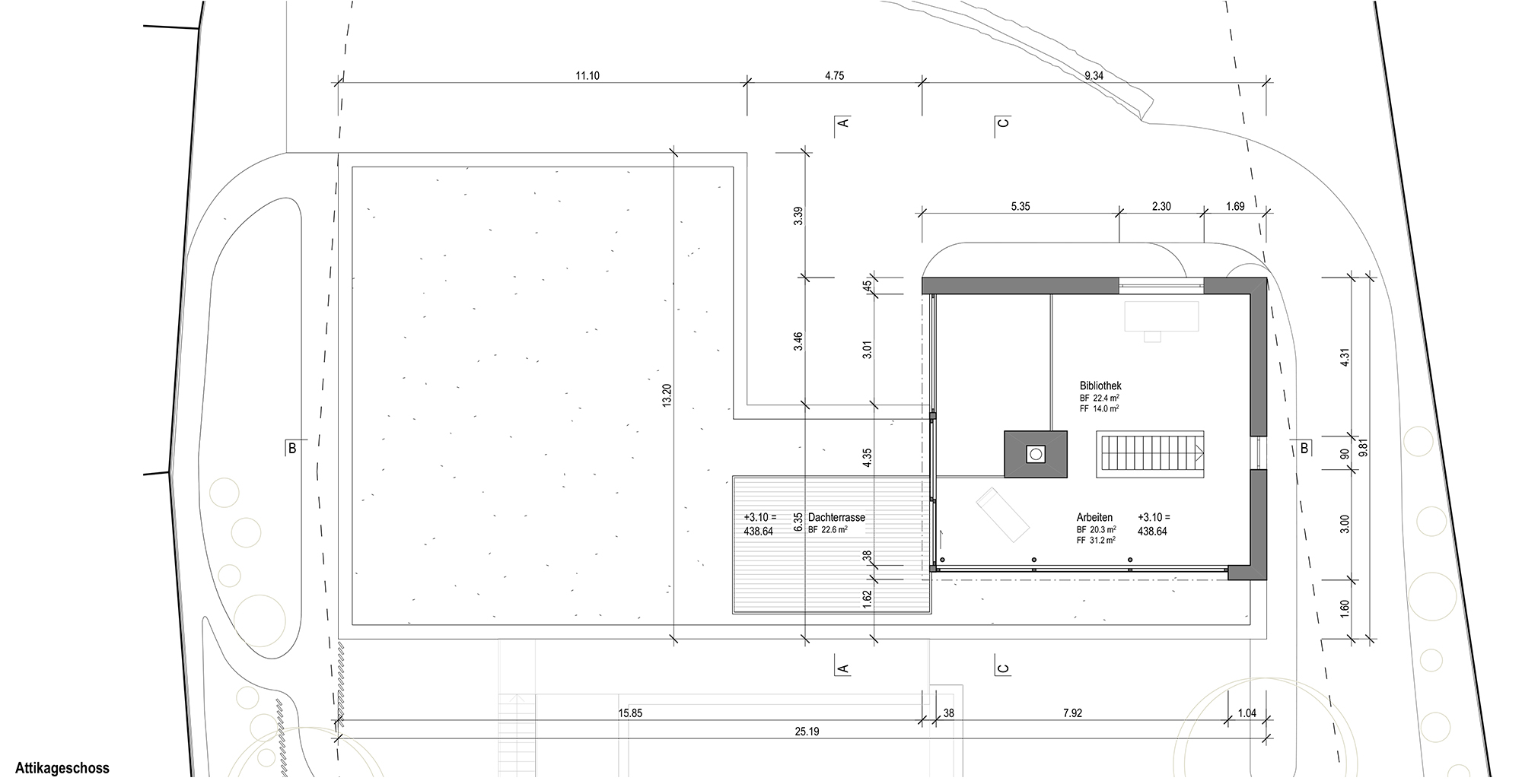
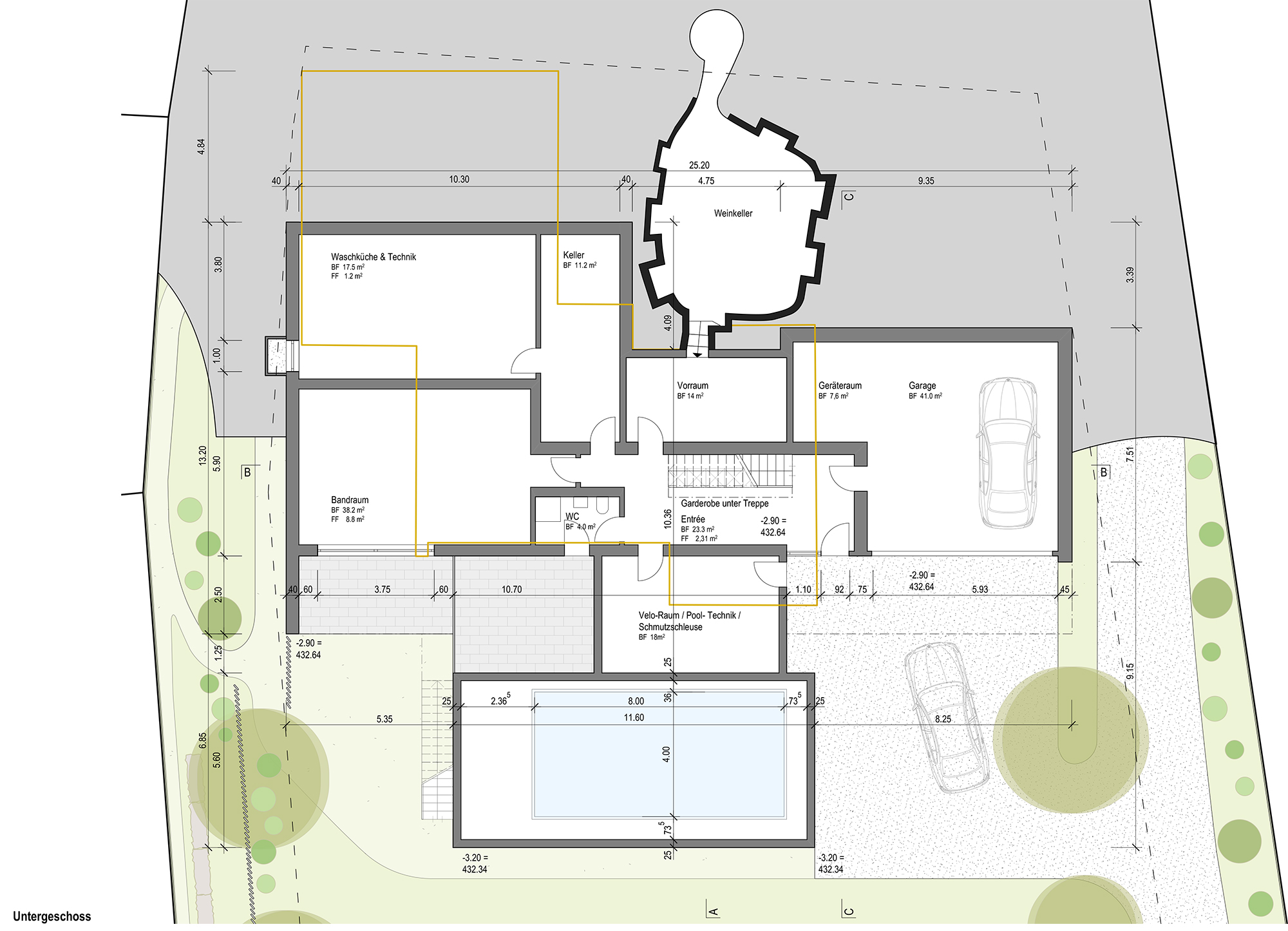
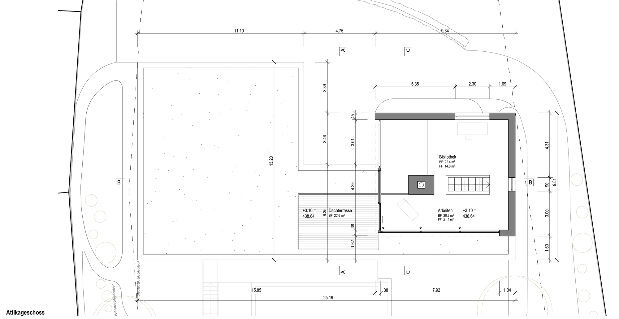
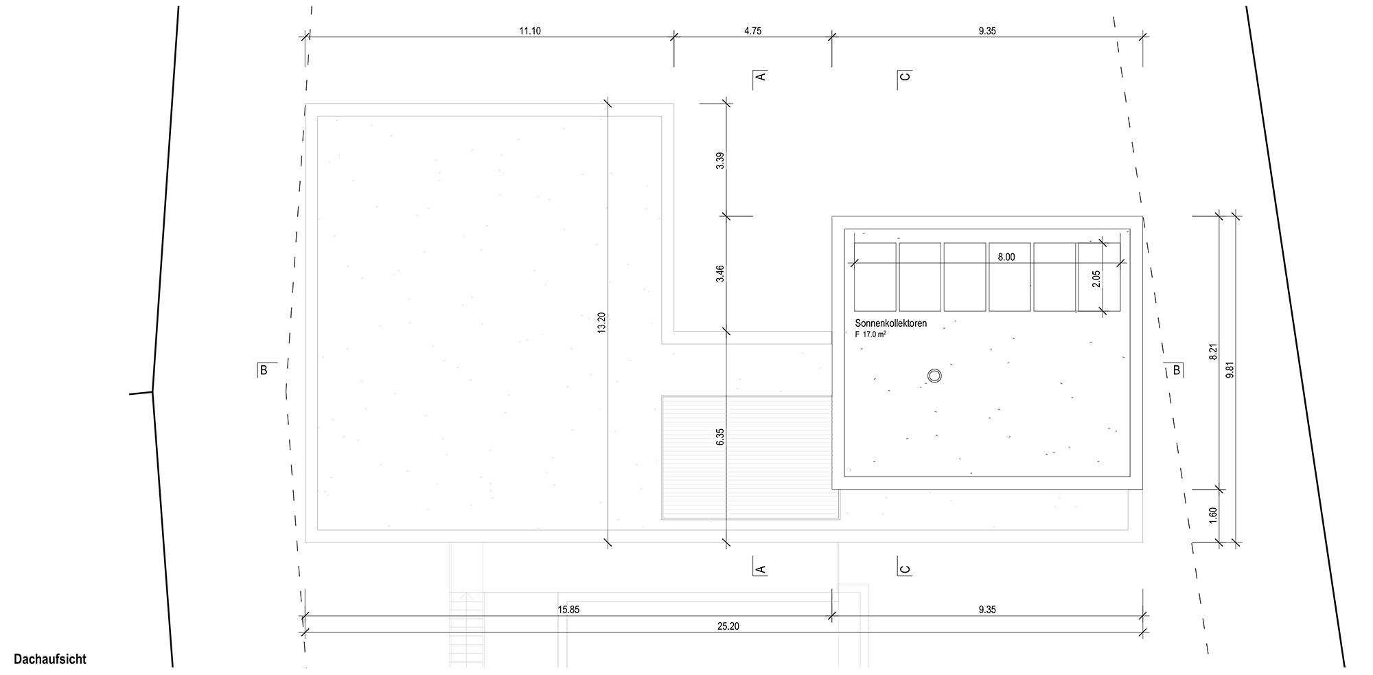
EFH „Zelglistrasse“

Würenlos
Bauprojekt + Baueingabe
Junior-Projektleitung
2016
rgp architekten sia ag