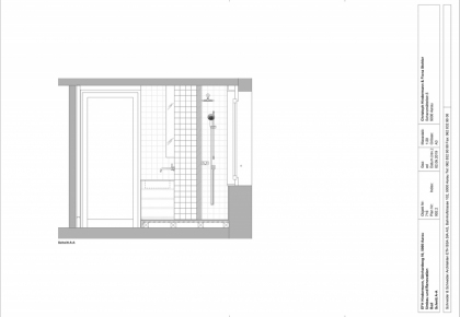
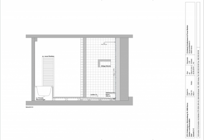
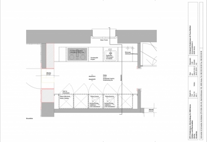
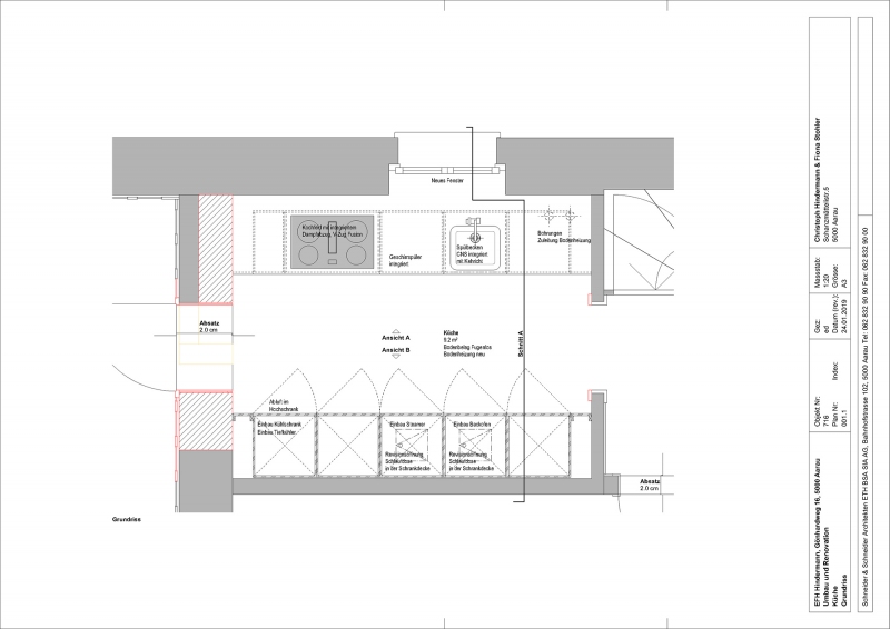
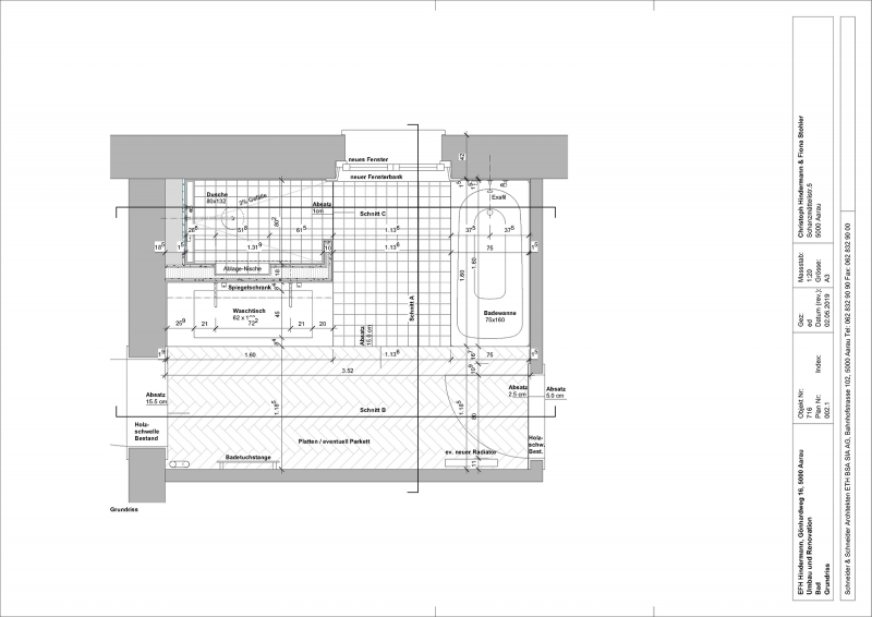
Sanierung EFH „Gönhardweg“ Aarau Entwurf - Ausführungsplanung Projektleitung 2019 Schneider & Schneider Architekten ETH BSA SIA AG [Show slideshow]