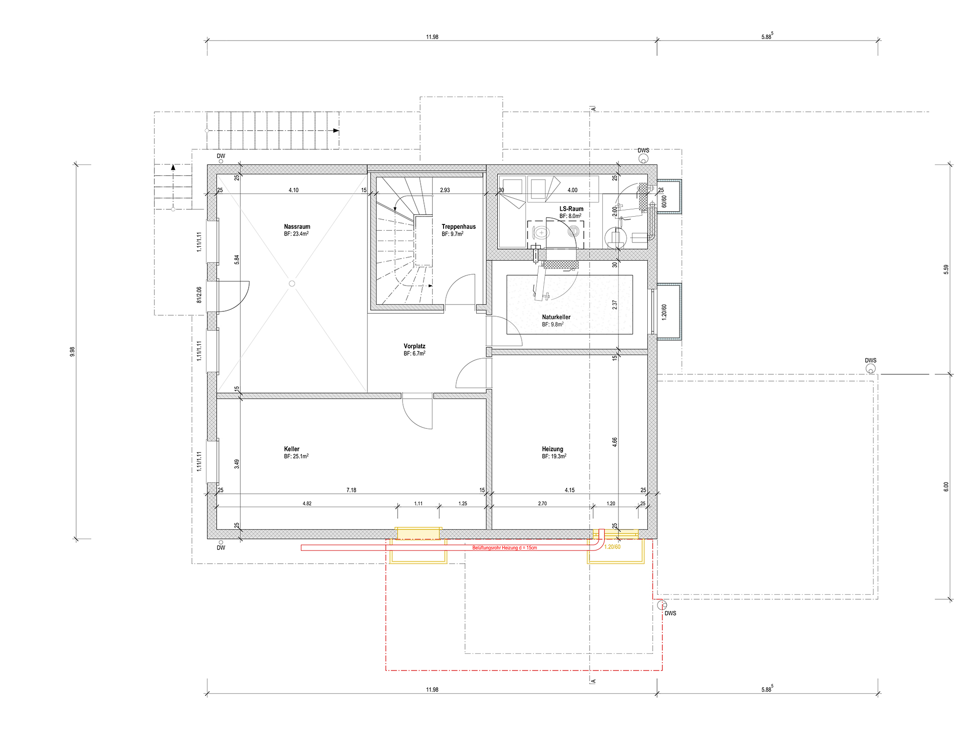
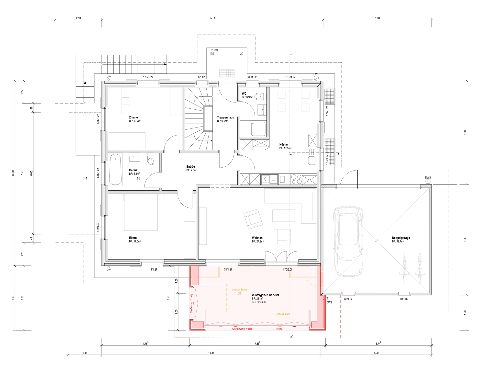
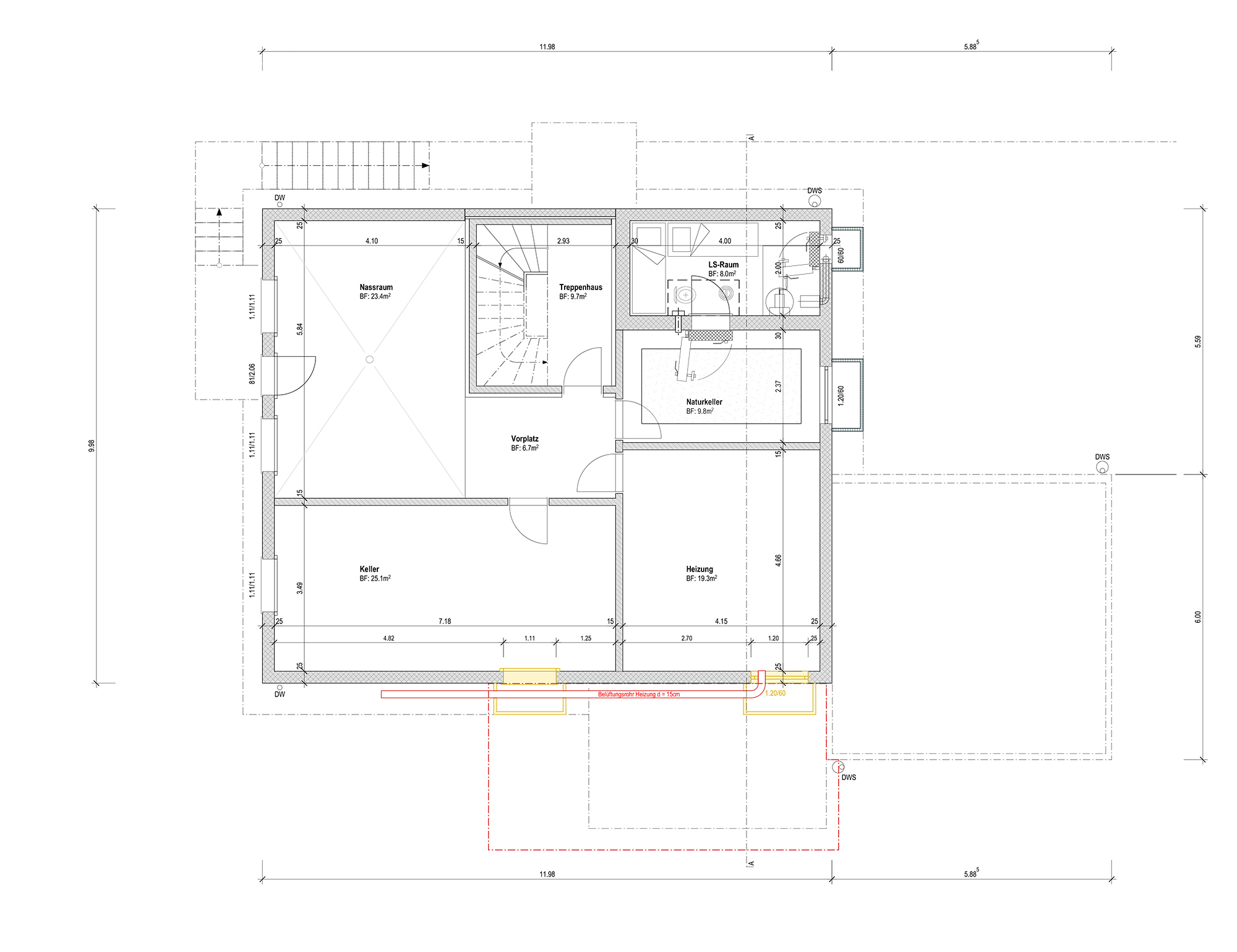
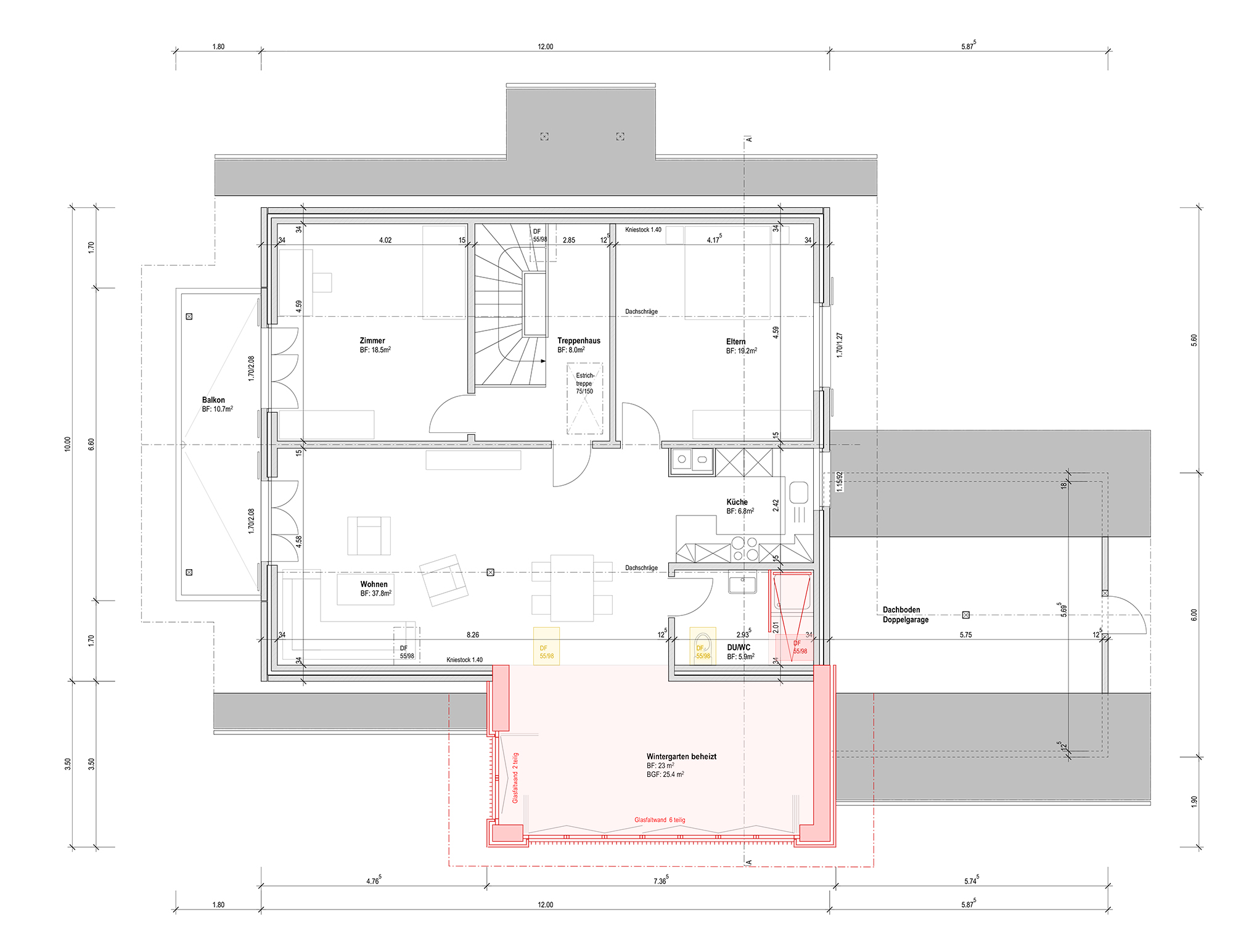
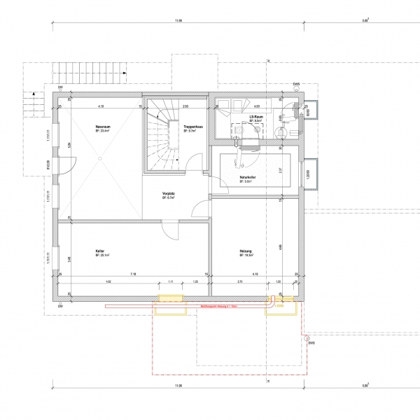
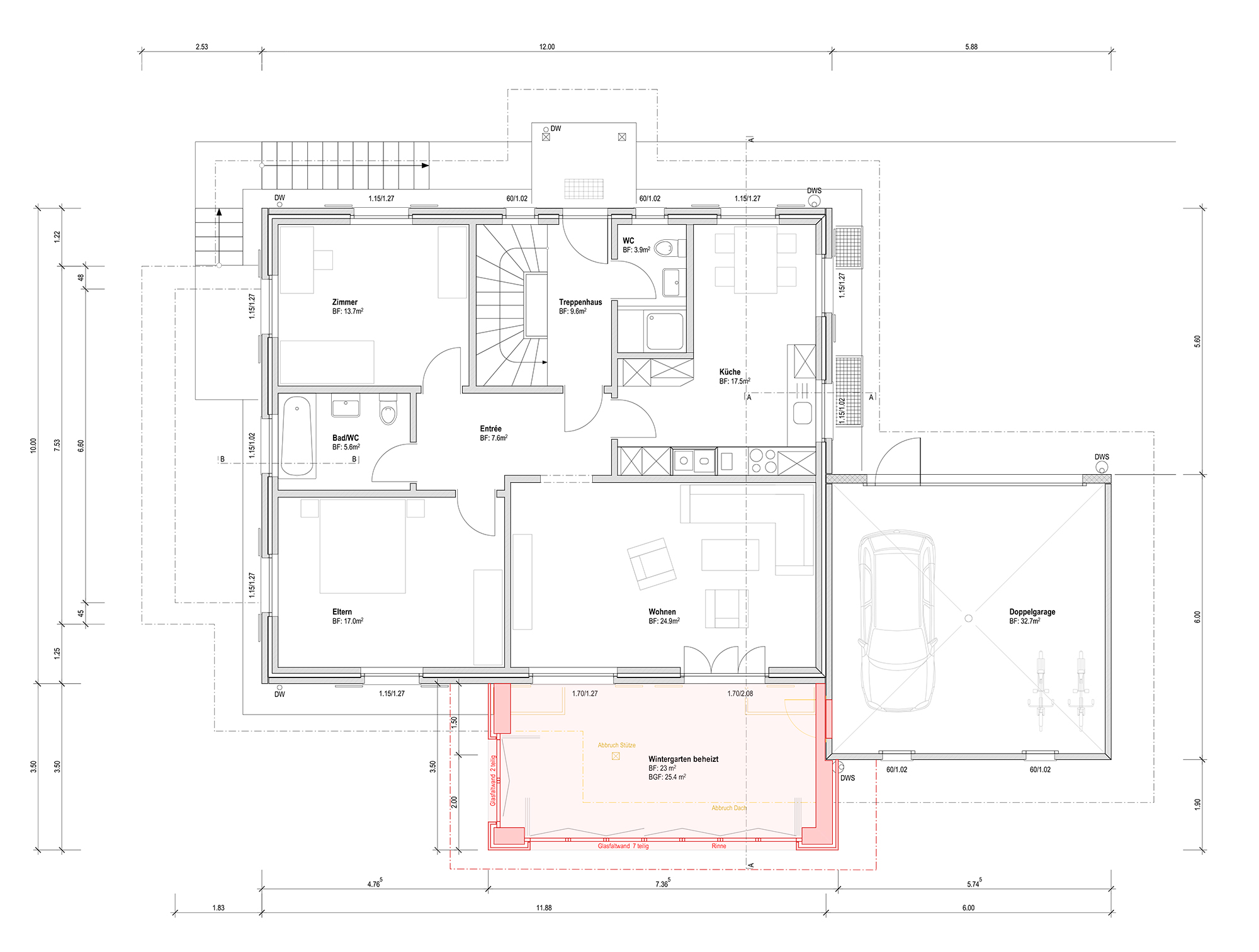
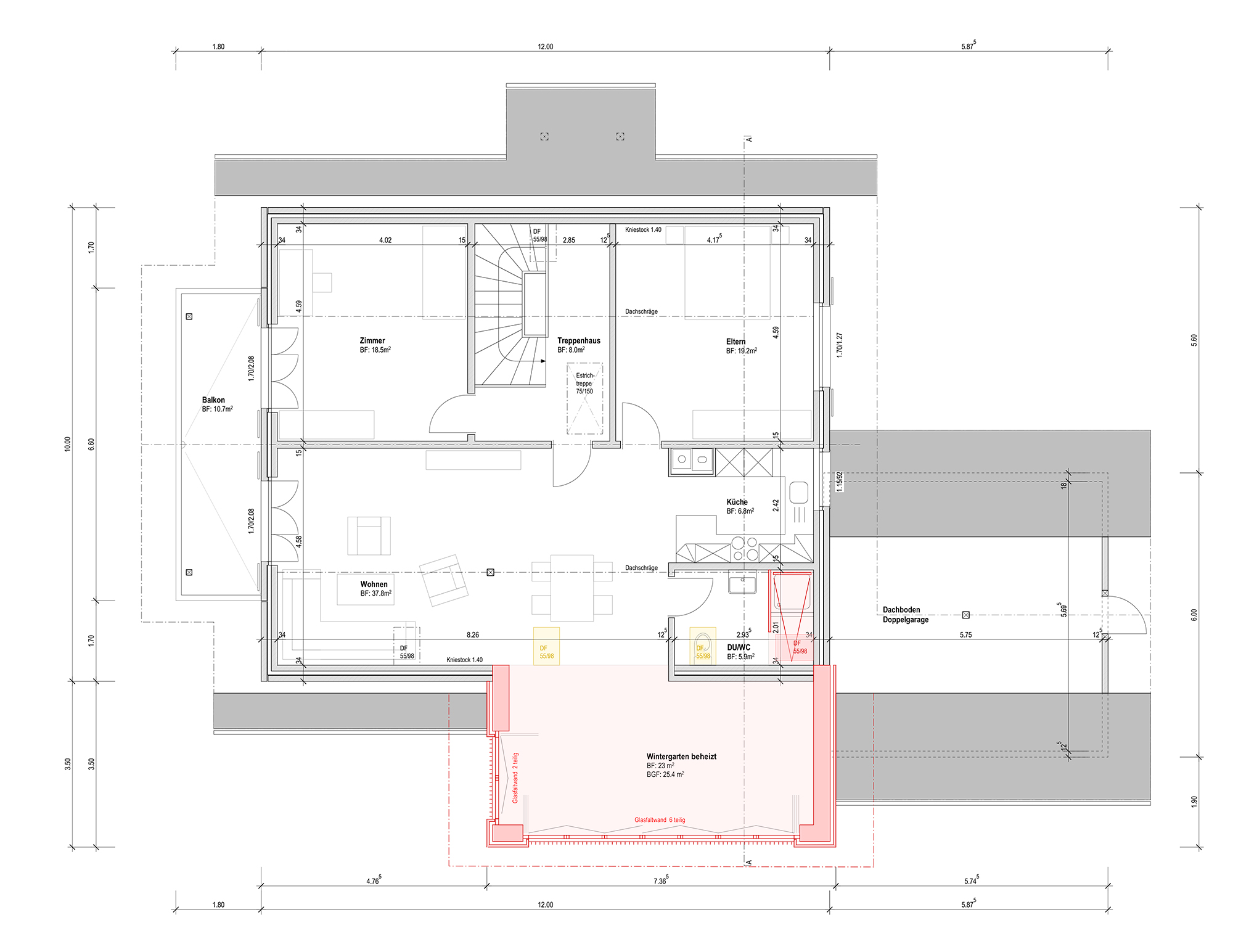
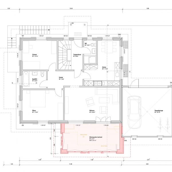
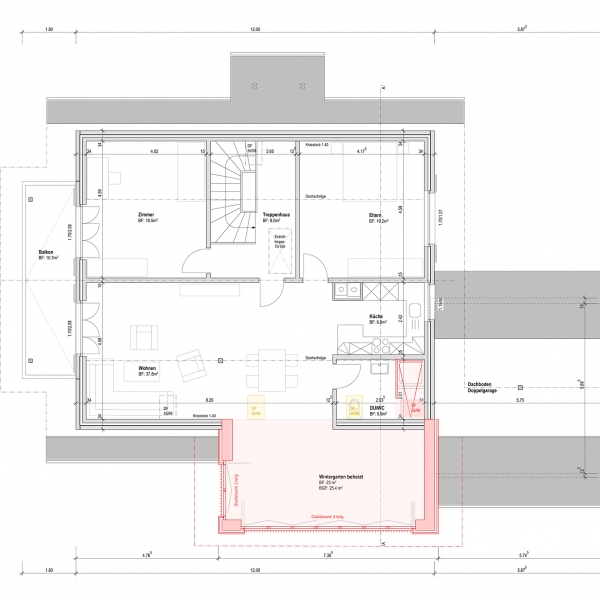
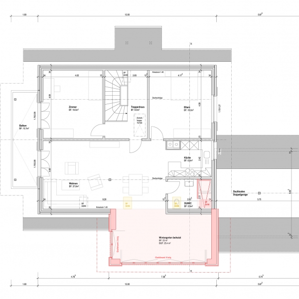
Anbau MFH „Oberdorfstrasse“

Uerzlikon
Entwurf bis Baueingabe
Projektleitung
2015
rgp architekten sia ag