Skip to content
Emmanuel Dietz – architekt – bachelor of arts zfh

Emmanuel Dietz – architekt – bachelor of arts zfh

Architekt – bachelor of arts zfh

  • Entwurf
  • Planung
  • Ausführung
  • Design
  • Lebenslauf

2 MFH „Oberdorfstrasse“

Uerzlikon
Vorprojekt bis Baueingabe
Projektleitung
2015
rgp architekten sia ag

14013 Kanton 1
14013 Kanton 2
14013 Kanton 3
14013 Kanton 5
2015-07-07_14013_018 Fassaden- und Ladenkonzept
2015-07-07_14013_018 Fassaden- und Ladenkonzept
2015-07-07_14013_001 Situation
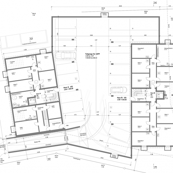
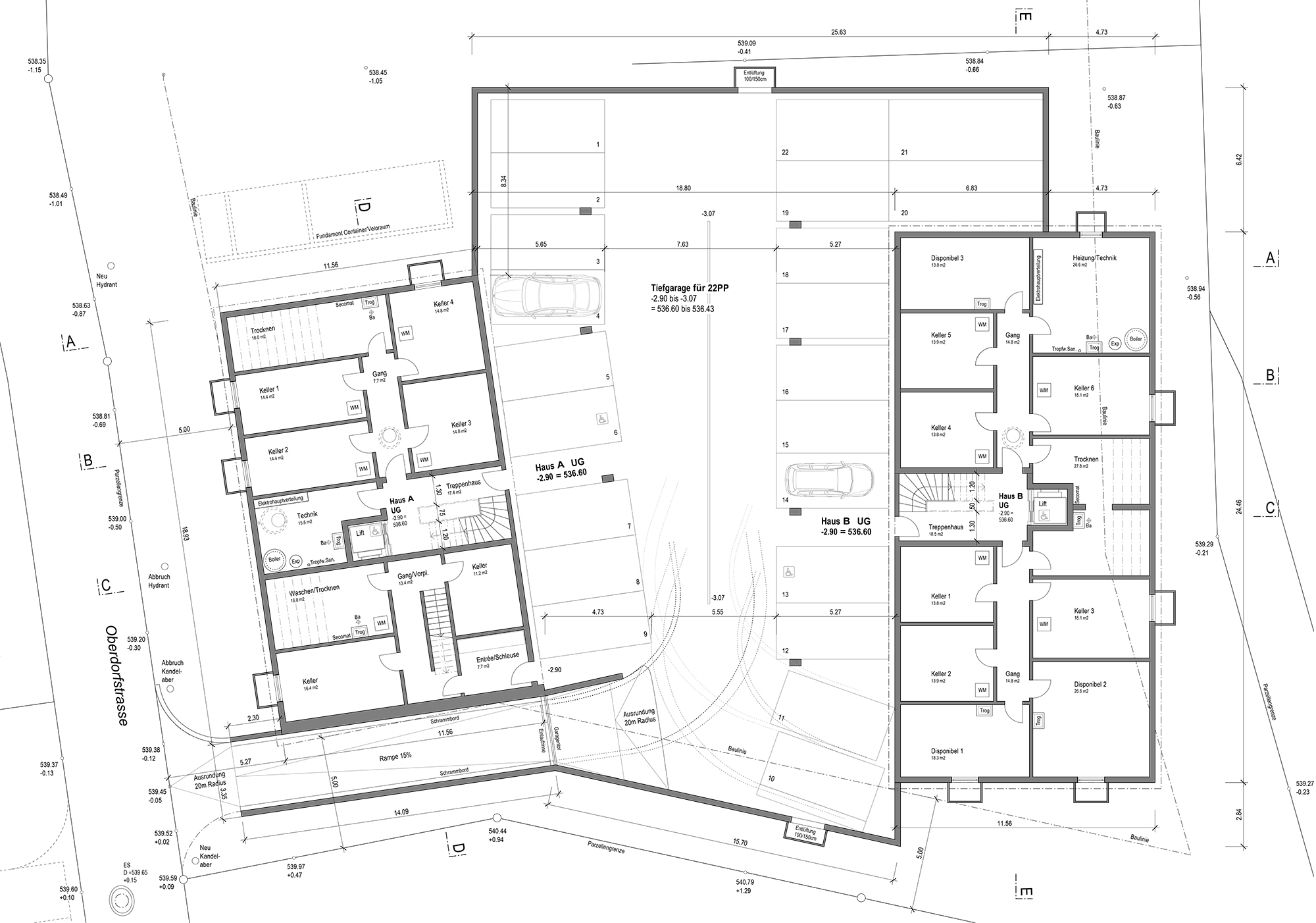
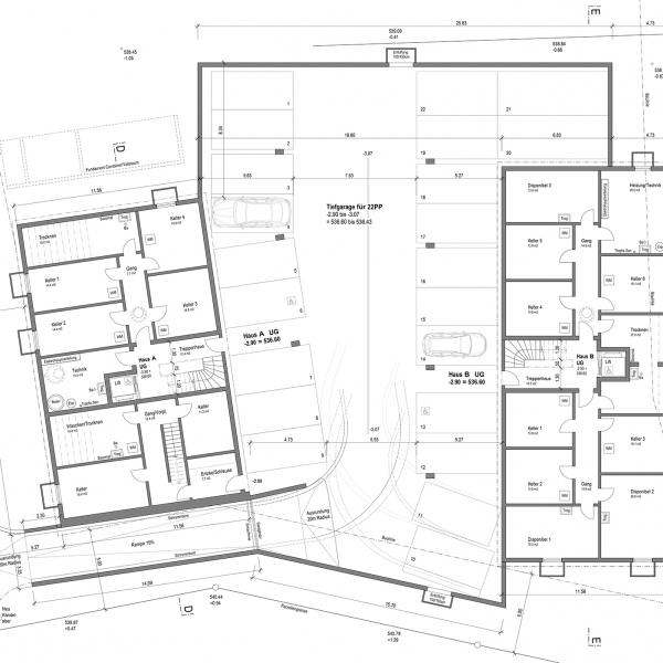
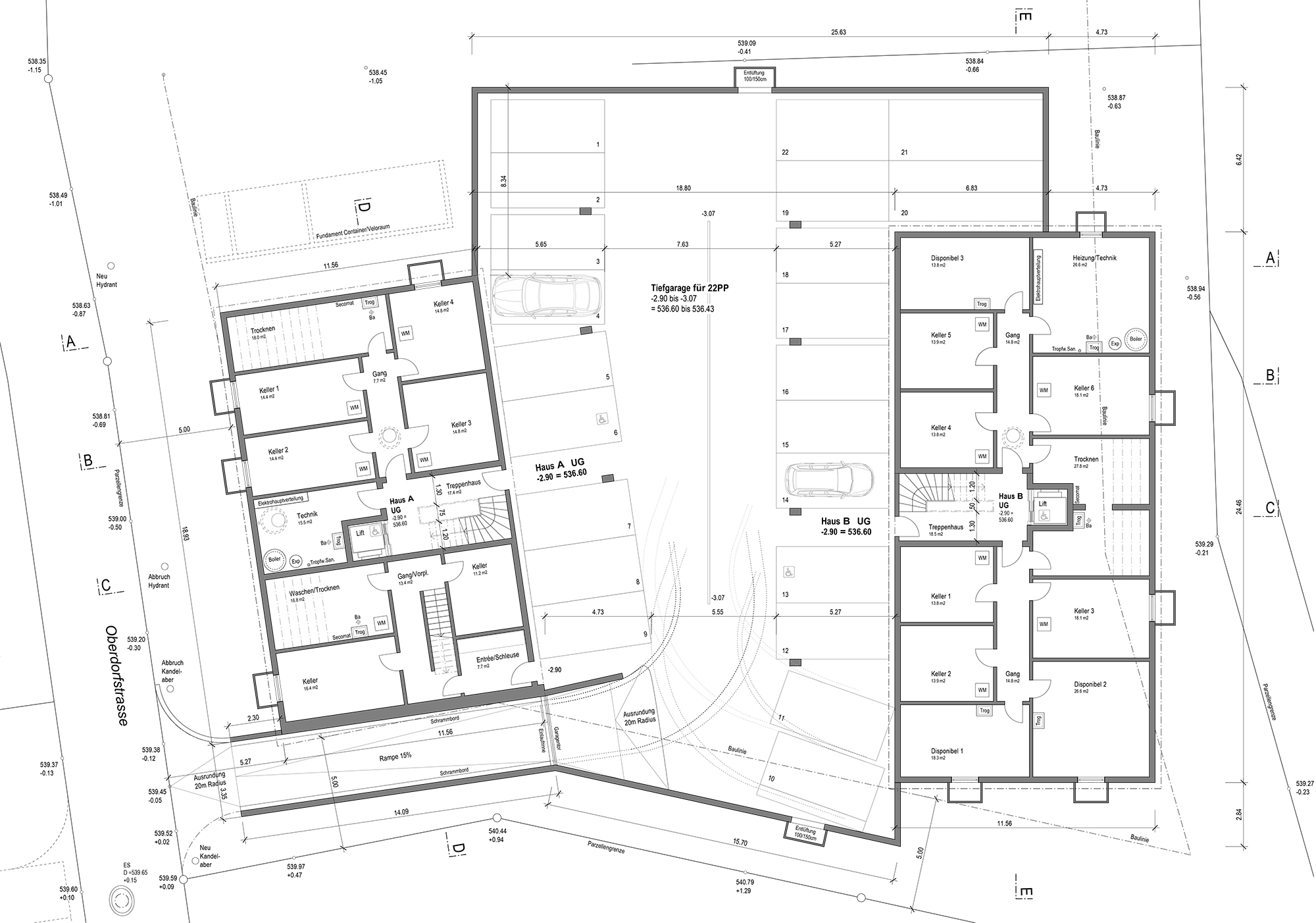
2015-07-07_14013_002 UG Haus A+B-Tiefgarage
2015-07-07_14013_003 EG Haus A+B-Umgebung
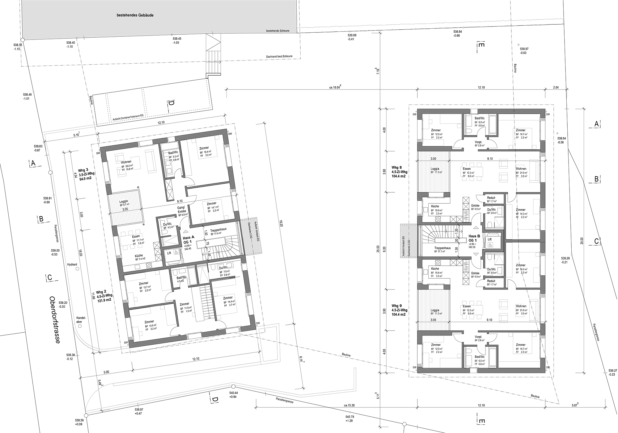
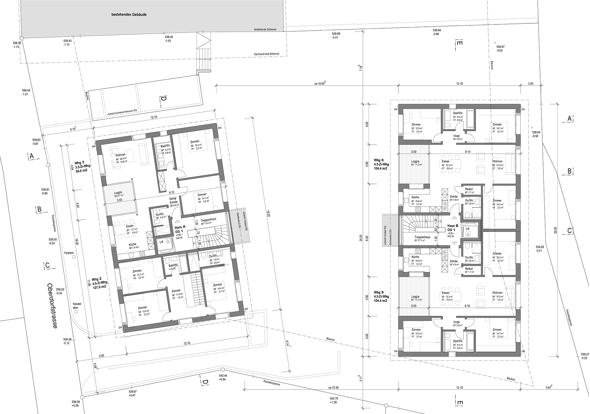
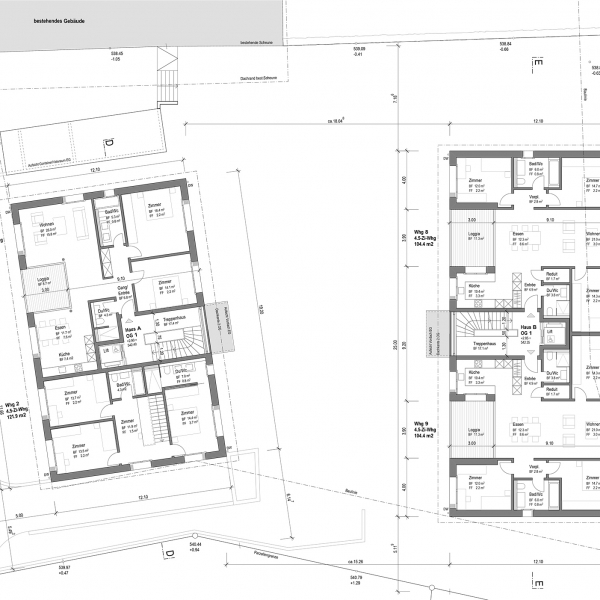
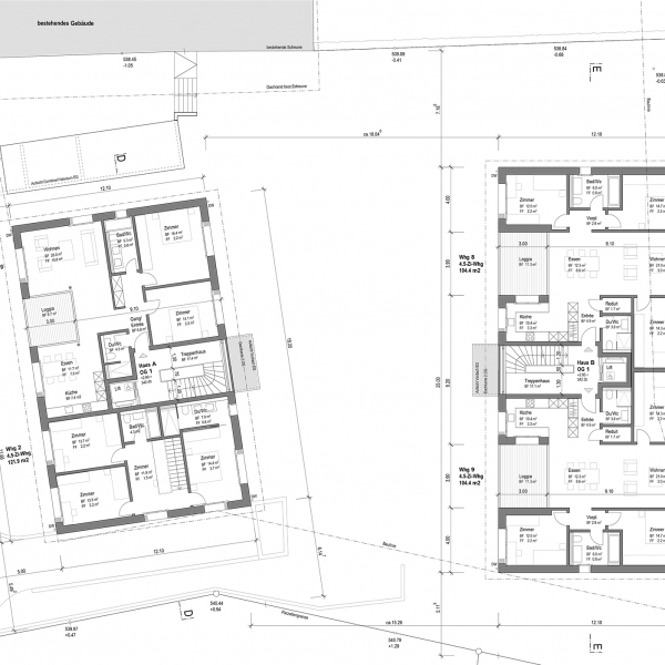
2015-07-07_14013_004 OG1 Haus A+B
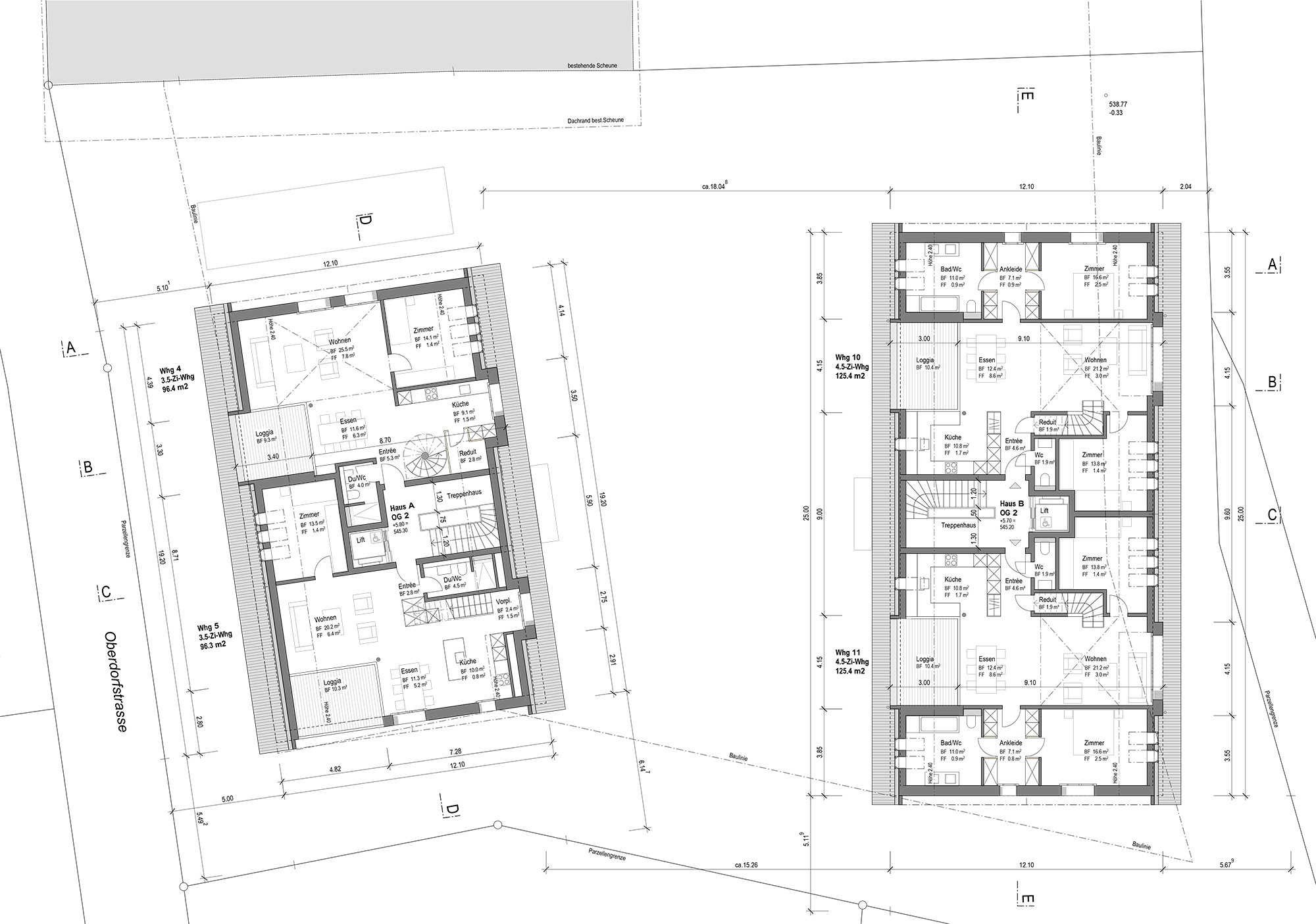
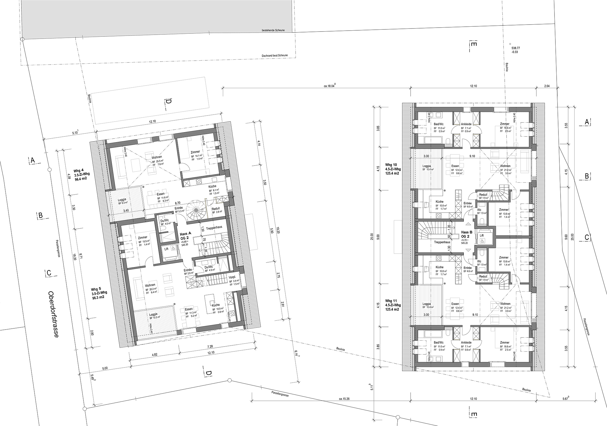
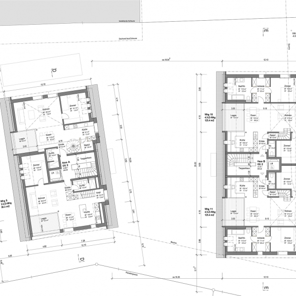
2015-07-07_14013_005 OG2 Haus A+B
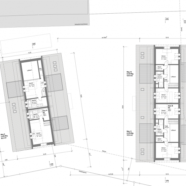
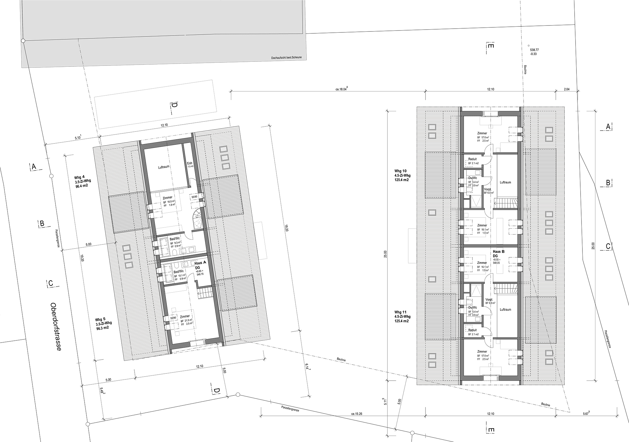
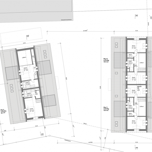
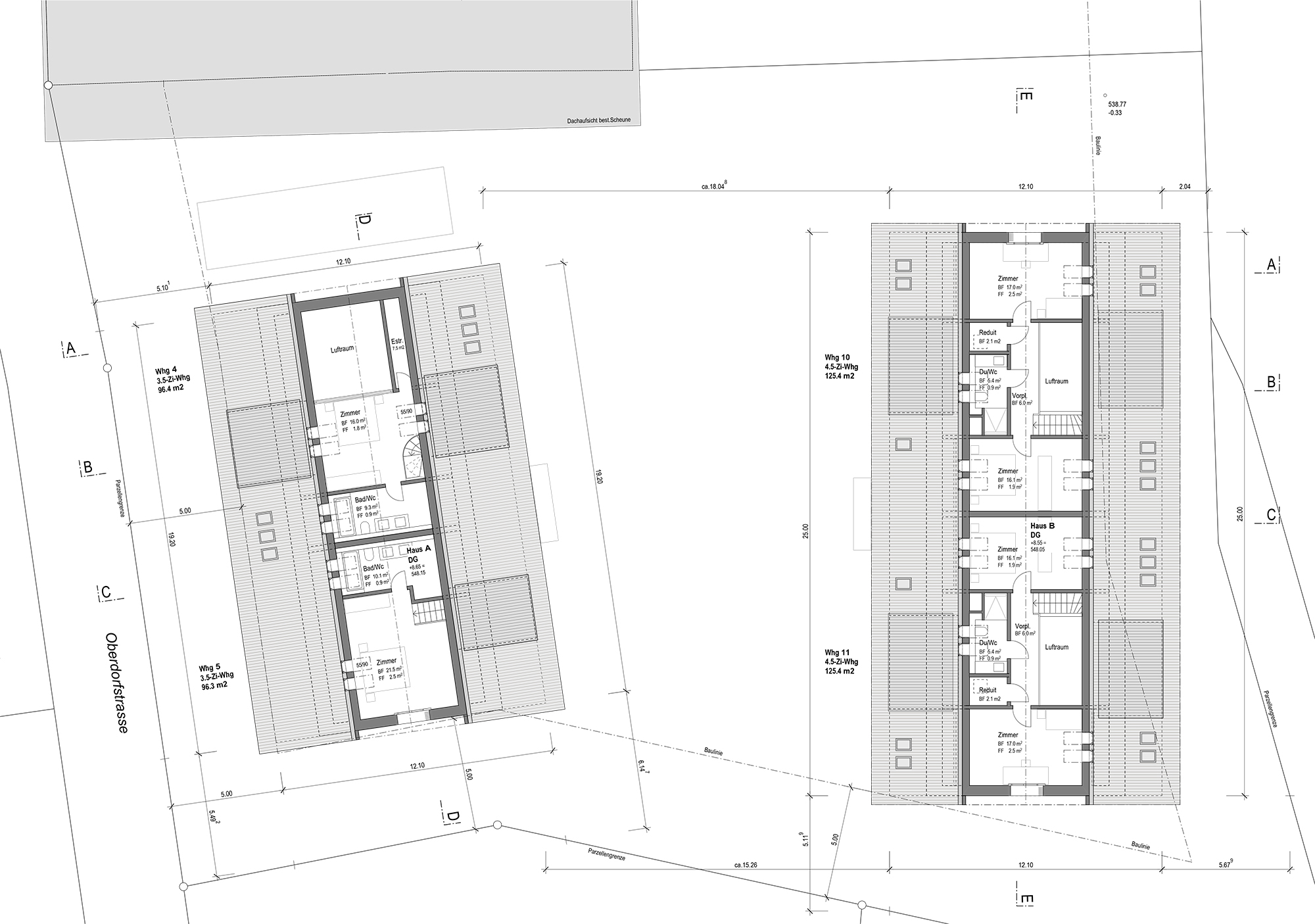
2015-07-07_14013_006 DG Haus A+B
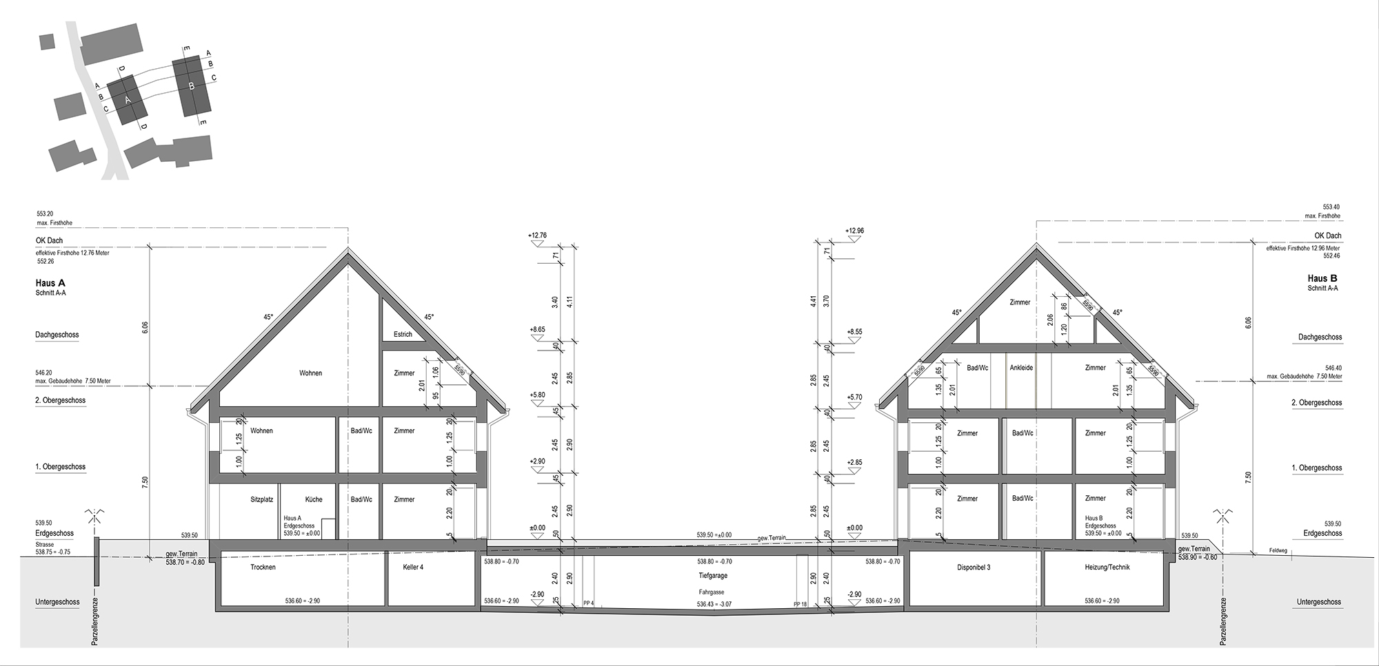
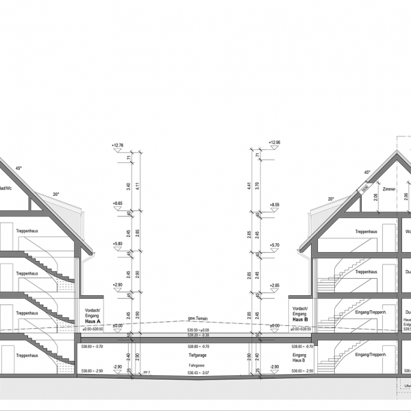
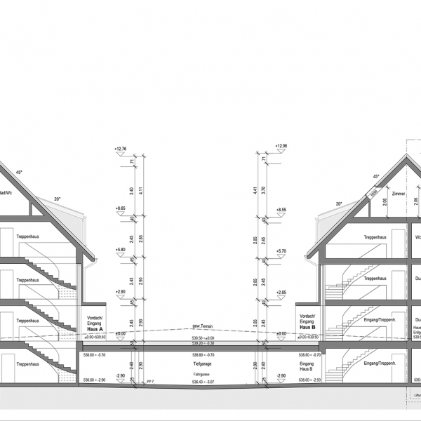
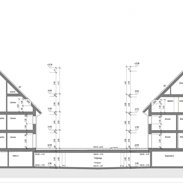
2015-07-07_14013_007 Schnitt A-A_Haus A+B
2015-07-07_14013_008 Schnitt B-B_Haus A+B
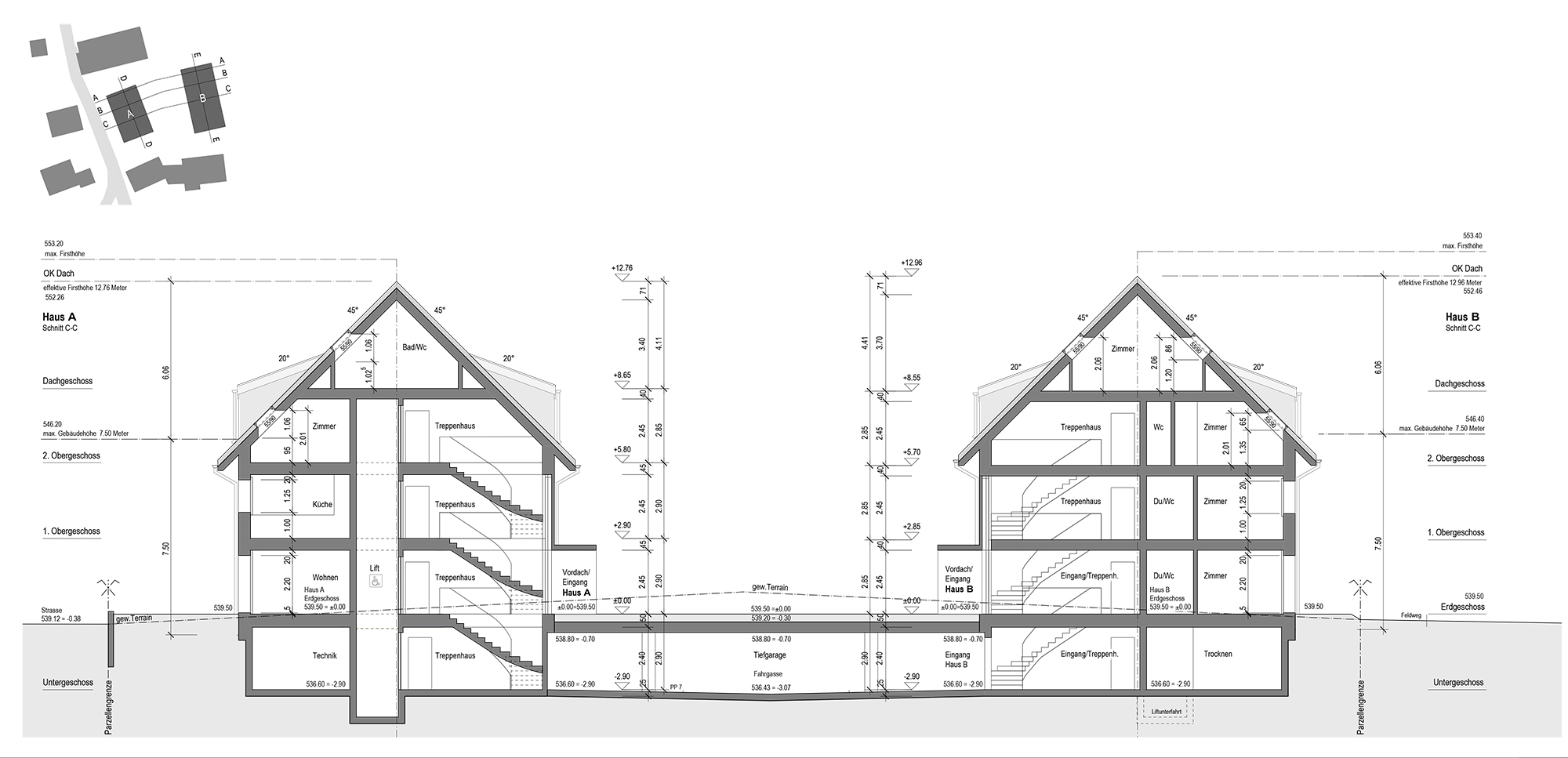
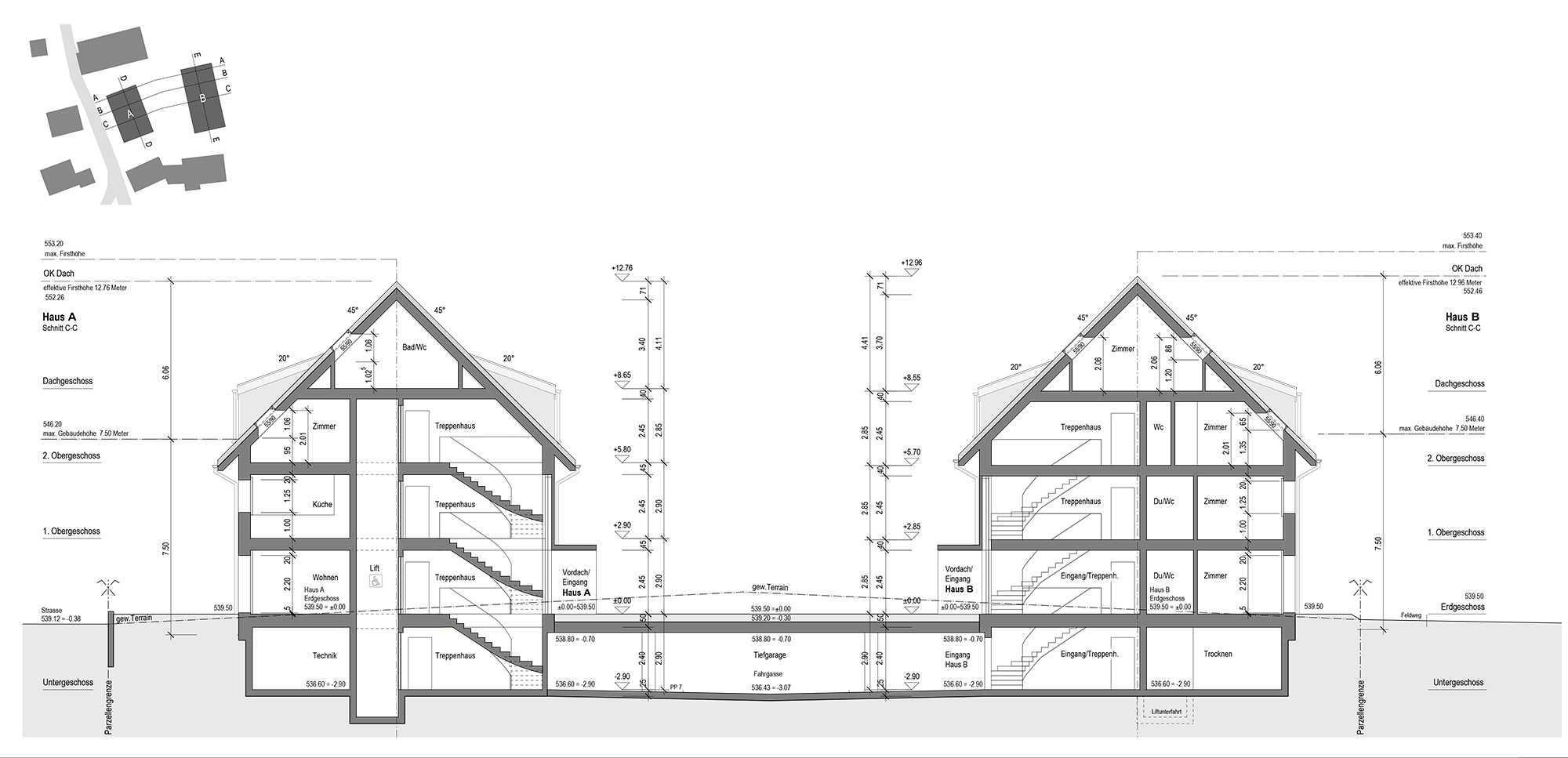
2015-07-07_14013_009 Schnitt C-C_Haus A+B
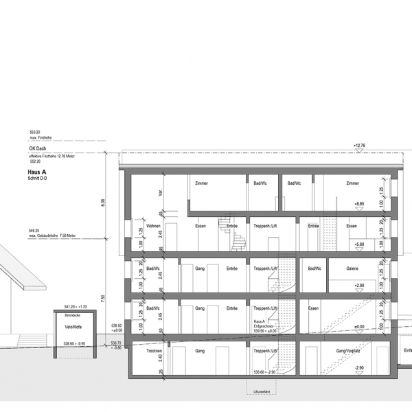
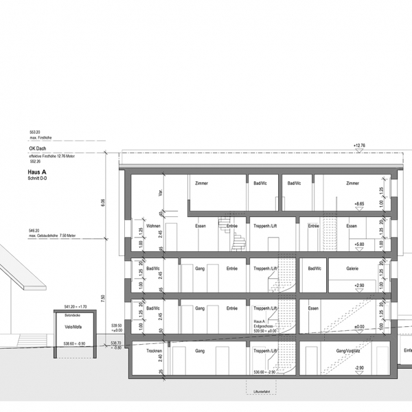
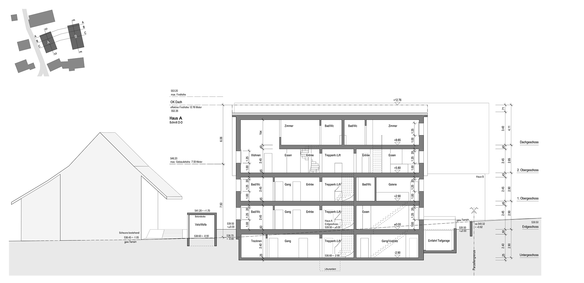
2015-07-07_14013_009 Schnitt D-D_Haus A
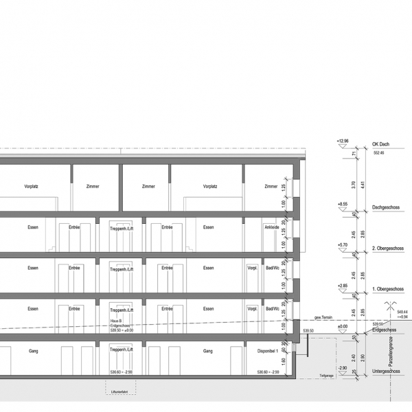
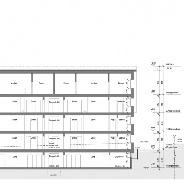
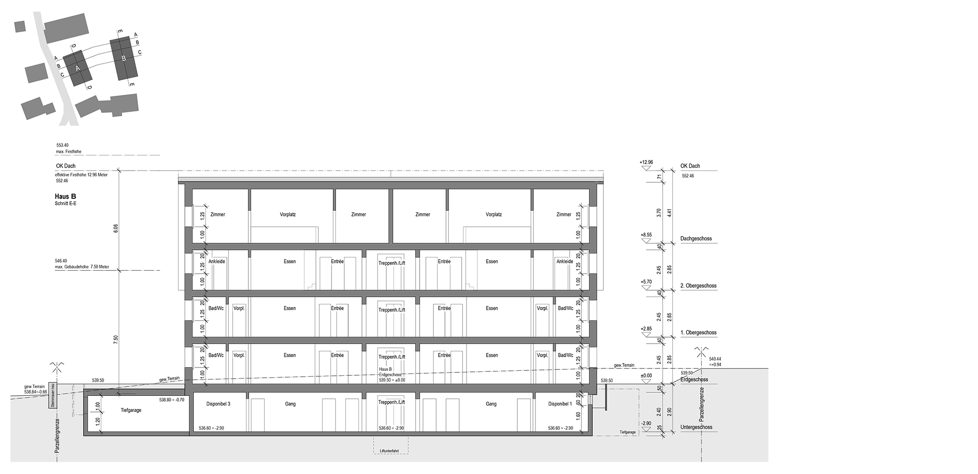
2015-07-07_14013_010 Schnitt E-E_Haus B
2015-07-07_14013_012 Nordfassaden_Haus A+B
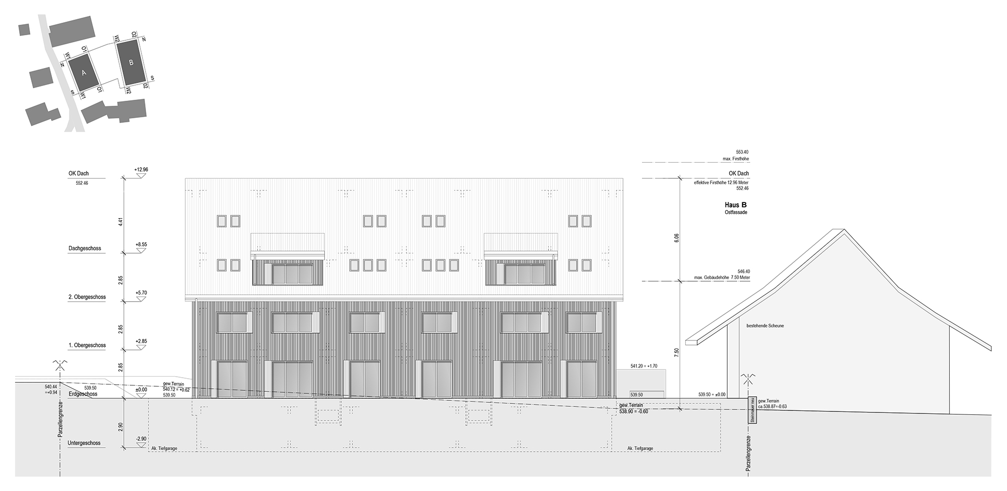
2015-07-07_14013_013 Ostfassade_Haus A
2015-07-07_14013_017 Westfassade_Haus B
2015-07-07_14013_014 Ostfassade_Haus B
2015-07-07_14013_015 Suedfassade_Haus A+B
2015-07-07_14013_016 Westfassade_Haus A
2015-07-07_14013_017 Westfassade_Haus B
01_06_25_2mfh uerzlikon
01_06_26_2mfh uerzlikon

Impressum